Holiday Parks

Residential Parks

Homes For Sale

Creating Exceptional Communities

Creating Exceptional Communities

Holiday & Residential Park living, throughout the UK

Creating Exceptional Communities

2 Bed Regal Hemsworth

✓ Holiday Park Home

£59,995

New

Home

2022

Established

42ft x 13ft

Size

2

Bedrooms

2

Bathrooms

Property Overview

Step into The Hemsworth, a stunning new detached home featuring two spacious bedrooms and sleek, contemporary bathrooms. The standout French doors flood the living space with natural light and offer seamless access to the south facing outdoor area.

Key Features

●  £310.80 per month Ground Rent*

●  50 Year Site Licence

 

●  Fully Furnished
●  Superfast Broadband
●  Quiet, Rural Location

*Standard Terms & Conditions Apply — Please contact Monte Carlo Parks directly for further information, or to book a no-obligation property and park tour.

Photographs and layout diagrams are for illustrative and marketing purposes only — Please contact Monte Carlo Parks directly for property details and specifications, or to book a no-obligation property and park tour.

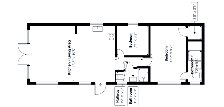
Click on the layout above to enlarge

Internal Layout

The kitchen, designed for convenience, includes a separate grill, a large integrated fridge freezer, and ample storage. The chic Brise Soleil elegantly divides the kitchen and dining area while preserving an open plan feel. The expansive master bedroom includes a walk-in wardrobe, ensuite shower room, large dressing table, and tall drawer units, ensuring plenty of storage. This light and airy retreat is ideal for modern, comfortable living.

Haddiscoe Country Retreat, Norfolk

Nestled in a picturesque Norfolk village, this peaceful haven is the perfect place to slow down and enjoy life at your own pace. Situated on the edge of the Norfolk Broads and just a short drive from the coast, it offers the ideal balance of relaxation and convenience. Whether you’re unwinding on your decking with a morning coffee, strolling through the local lanes, or spending quality time with family and friends, Haddiscoe Country Retreat is designed for life’s simple pleasures.

Your Simple Home Exchange Journey

Making your move to a new park home couldn’t be easier. We’ve created a simple, stress-free Home Exchange process that helps you transition smoothly — while saving you time, effort, and money.

Step 1 — Free, No-Obligation Valuation

We’ll arrange for two independent estate agents to value your current home. Using their professional assessments, we’ll make you a fair and transparent Home Exchange Offer, so you know exactly what to expect from the start. We typically request both 6-week and 12-week valuations, and we’ll discuss these with you to ensure all parties agree on the final figure. We also instruct the estate agent to market your property above the valuation for a few weeks, ensuring you achieve the best possible market value.

Step 2 — We Pay Your Fees

Forget the hidden costs of moving — we’ll cover your estate agent and solicitor fees. That means no upfront costs, helping you save thousands and keeping your move completely hassle-free.

Step 3 — Secure Your New Home

Once you’re happy with your offer, it’s time to choose your dream park home. Simply place your deposit to secure one of our stunning show homes or select a bespoke design tailored perfectly to your lifestyle. Conveyancing begins as soon as your plot is confirmed.

Step 4 — Exchange & Move In

When contracts are exchanged, the exciting part begins — you can move into your brand-new park home even if your house is not yet sold and start enjoying the lifestyle you’ve been waiting for. We call this a ‘long-stop completion’, which allows you to move into your new home sooner. You’ll remain the legal owner of your existing property until legal completion, and you won’t pay a penny for your park home until that point.

Step 5 — Completion

Finally, we’ll complete the sale of your existing bricks-and-mortar home, giving you total peace of mind. You’ll then receive your new park home along with the price difference between your current home and your new one.

Example —

Your bricks-and-mortar home is valued at £350,000. Your new park home costs £250,000. NO Stamp Duty. NO Solicitor Fees. NO Estate Agent Fees. After completion, you’ll move into your beautiful new park home and receive the £100,000 difference — which you can use to pay off your mortgage, enhance your pension or help family financially.

© Monte Carlo Parks Ltd, All Rights Reserved

Registered in the UK : 1065 6532

VAT # : 280 618 401

Website by CAMBITION