Holiday Parks

Residential Parks

Homes For Sale

Creating Exceptional Communities

Creating Exceptional Communities

Holiday & Residential Park living, throughout the UK

Creating Exceptional Communities

2 Bed Stately Albion Tredegar Elite

✓ Residential Park Home

£169,995

New

Home

2026

Established

40ft x 20ft

Size

2

Bedrooms

1

Bathrooms

Property Overview

Stunning Brand-New 40′ x 12′ Tredegar Elite Park Home – Exclusive Over-55s Residential Community

This beautifully finished Tredegar Elite park home offers modern, low-maintenance living on a fully residential site, complete with a lifetime lease and a reassuring 10-year warranty.

Key Features

●  £351.90 per month Ground Rent*
●  Ramp access
●  Rural Quiet Location

●  Over 55’s Park Home Site
●  Superfast Broadband
●  Indefinite Lease Term

*Standard Terms & Conditions Apply — Please contact Monte Carlo Parks directly for further information, or to book a no-obligation property and park tour.

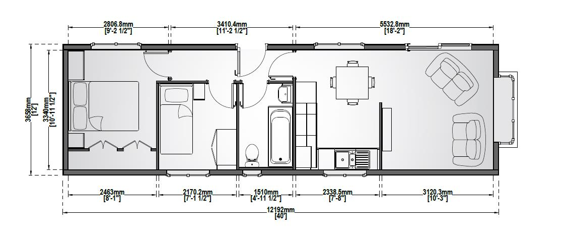
Click on the layout above to enlarge

Internal Layout

The accommodation includes two well-proportioned bedrooms with fitted wardrobes, a bright double-aspect kitchen and breakfast room with integrated appliances, and a spacious dual-aspect living area featuring sliding doors that open to the outside. Off-road parking is provided, and the home is perfectly positioned beside peaceful woodlands, creating an attractive natural backdrop and a wonderful setting for local walks.

An ideal choice for those seeking comfort and tranquillity within an exclusive over-50s community. Viewing is highly recommended.

Yarwell Mill, Northants

A luxurious, welcoming and peaceful environment is waiting for you at Yarwell Mill Country Park, a 27-acre site on the banks of the River Nene, right where Northamptonshire, Cambridgeshire and the city of Peterborough meet. This park is a testament to Monte Carlo Parks’ commitment to refinement, peaceful surroundings and continual improvement.

Start your journey to redefine living at Yarnwell Mill. We’re convinced you’ll fall in love with the place, just as we have.

Your Simple Home Exchange Journey

Making your move to a new park home couldn’t be easier. We’ve created a simple, stress-free Home Exchange process that helps you transition smoothly — while saving you time, effort, and money.

Step 1 — Free, No-Obligation Valuation

We’ll arrange for two independent estate agents to value your current home. Using their professional assessments, we’ll make you a fair and transparent Home Exchange Offer, so you know exactly what to expect from the start. We typically request both 6-week and 12-week valuations, and we’ll discuss these with you to ensure all parties agree on the final figure. We also instruct the estate agent to market your property above the valuation for a few weeks, ensuring you achieve the best possible market value.

Step 2 — We Pay Your Fees

Forget the hidden costs of moving — we’ll cover your estate agent and solicitor fees. That means no upfront costs, helping you save thousands and keeping your move completely hassle-free.

Step 3 — Secure Your New Home

Once you’re happy with your offer, it’s time to choose your dream park home. Simply place your deposit to secure one of our stunning show homes or select a bespoke design tailored perfectly to your lifestyle. Conveyancing begins as soon as your plot is confirmed.

Step 4 — Exchange & Move In

When contracts are exchanged, the exciting part begins — you can move into your brand-new park home even if your house is not yet sold and start enjoying the lifestyle you’ve been waiting for. We call this a ‘long-stop completion’, which allows you to move into your new home sooner. You’ll remain the legal owner of your existing property until legal completion, and you won’t pay a penny for your park home until that point.

Step 5 — Completion

Finally, we’ll complete the sale of your existing bricks-and-mortar home, giving you total peace of mind. You’ll then receive your new park home along with the price difference between your current home and your new one.

Example —

Your bricks-and-mortar home is valued at £350,000. Your new park home costs £250,000. NO Stamp Duty. NO Solicitor Fees. NO Estate Agent Fees. After completion, you’ll move into your beautiful new park home and receive the £100,000 difference — which you can use to pay off your mortgage, enhance your pension or help family financially.

© Monte Carlo Parks Ltd, All Rights Reserved

Registered in the UK : 1065 6532

VAT # : 280 618 401

Website by CAMBITION